店舗事務所 > 教育施設 > 店舗改装工事[学習塾](岡山市北区K塾様)施工事例#18312
店舗改装工事[学習塾](岡山市北区K塾様)施工事例#18312
| 施工場所 | 岡山市北区 |
|---|---|
| 築年数 | 約15年 |
| リフォーム費用 | 約960.6万円 |
| リフォーム期間 | 90日 |
ビフォー

アフター

ビフォー

アフター
[
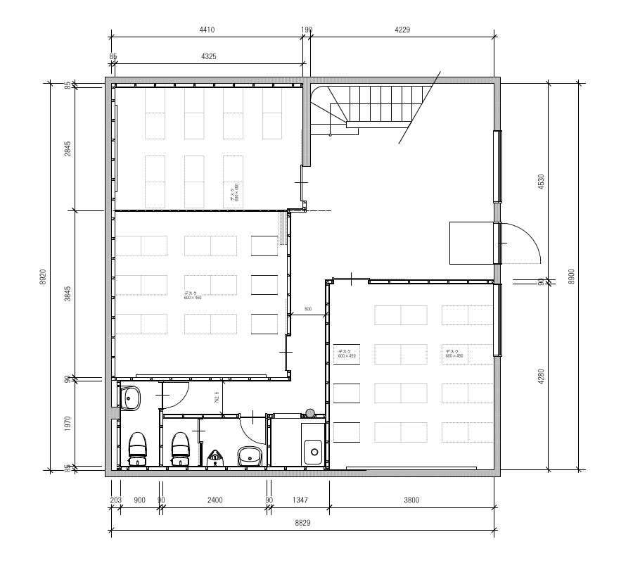
図面
その他写真例
←「外壁塗装工事(倉敷市Y様邸)施工事例#6300」前の記事へ 次の記事へ「幼稚園改装工事(岡山市北区株式会社A様)施工事例#14614」→
| 施工場所 | 岡山市北区 |
|---|---|
| 築年数 | 約15年 |
| リフォーム費用 | 約960.6万円 |
| リフォーム期間 | 90日 |



[
店舗改装工事[学習塾]
岡山市北区で学習塾の改装工事をしました。
以前は中華料理店だったお店を塾に改装しています。
・1F、2F内装解体
・旧厨房土間コンクリート打設
・間仕切壁、天井設置
・外壁一部塗装
・教室、トイレ等建具設置
・教室、廊下、ホール等、床壁クロス貼
・ロールスクリーン取付
・サイン工事(ホール、壁面、ガラス)
・空調工事(既存エアコン移設、新設)
・照明器具設置
・電気配線工事
・給排水配管工事
・衛生器具設置他
K塾様、この度は当社での学習塾の改装工事のご依頼、ありがとうございました。
また、その他お住まいのことでも何かございましたら、お気軽に当社へお問い合わせください